
玩味设计美学,极致空间改造,创造美好生活

Floating golden light
浮光
Jun.30 , 2022
Copyright © HEY Space Design
Project area 项目面积:148 m²+120m²花园
Decoration cost 装修费用:1400Thousand
Design team 设计团队:HEY Space Design
——余秋雨
正如我们对家的渴望与期待,内心的无限想象都希望通过设计师之手临摹实现。家暖、人暖!有品质但不豪奢,雅致又不张扬,舒适不异化。


@合壹空间设计:入户所见即一整块潘多拉铺设的电视背景墙,沉稳大气,木饰面的加入又增添了一分温柔细腻感。
Into the door the TV background wall laid down in an entire marble texture, calmed in the atmosphere, and the addition of wood finishes add yet another gentle subtlety.


@合壹空间设计:开放式的茶室,干净素雅,避免过多色彩的加入,纯色更能带来平和而宁静的氛围感。
The open tea room was clean and elegant, avoiding too many colors. The pure color could bring a peaceful and quiet atmosphere.



@合壹空间设计:格栅的背景墙契合于此的格调,一门到顶的展示柜,随感应灯光亮起而变得通透清亮,增加了整个客厅的轻盈感。
The background wall of the grill was in line with this style. The top to top display cabinet became transparent and bright with the light, making the whole living room light up.



@合壹空间设计:改造后的客餐厅,各区域之间没有明显的分界,空间更通透流畅。
After the reconstruction, there was no obvious boundary between each area, and the space was more transparent and smooth.

@合壹空间设计:餐厅为半开放式,嵌入式家电让空间的利用更井然有序,中厨与西厨分离,留下更灵活宽敞的空间,方便一家人于此享受烹饪的乐趣。
The dinner room was half open. The embedded appliances made the use of the space more orderly. The Chinese kitchen was separated from the western kitchen, leaving a more flexible and spacious space for the family to enjoy the pleasure of cooking here.



@合壹空间设计:餐厅与西厨相邻,一侧的落地窗方便将室外景色引入,用餐时也能欣赏花园园景,好不惬意,双层夹丝热弯玻璃,隔开休息区又自带朦胧感。
The dinner room was next to the western kitchen, and the French window on one side was convenient to lead in the outside scenery. When they were having dinner, they could also appreciate the garden view. It was not cozy, and the two layers of hot curved sandwiches glass separated the rest area with a hazy feeling.

@合壹空间设计:经过走廊,一侧便是餐厨区域,具有金属感的弧形造型作为客厅起居与餐厨之间的分隔,既不影响区域之间的互通也能增加空间的通透感。
After passing through the corridor, there was the dining kitchen area on one side. The metal arc shape was used as a division between the living room and the kitchen, which not only did not affect the communication between the areas, but also increased the sense of space.



@合壹空间设计:主卧延续整屋的轻奢感,木质格栅背景墙,质感高级,简约而不单调。
The master bedroom continued the extravagant feeling of the whole room. The grid wall of the ecological wood was high-grade, simple but not monotonous.




@合壹空间设计:简单一点的素雅色彩更易打造出静谧的睡眠感,深邃的夜,用一盏小夜灯点亮足矣。
A simple and elegant color was more likely to create a tranquil sense of sleep. In the deep night, it was enough to light up with a small night lamp.


@合壹空间设计:一门到顶的展示柜,足够摆放女主人日常所需的服装配饰,透明的玻璃门搭配感应灯带,低调内敛又充满时尚感。
There was a top to ceiling display cabinet, which was enough for the daily accessories of the hostess. The transparent glass door was matched with the induction light belt, which was low-key, reserved and full of fashion.


@合壹空间设计:主卫简洁明亮,双台盆设计,足够两人一起使用,互不影响。
The main guard was simple and bright, and the design of the double basin was enough for two people to use together without affecting each other.



@合壹空间设计:女儿房是整体统一的粉白,背景墙有层次的云朵形状与床头造型相互呼应,童趣可爱。
The daughter's room was in the same pink and white color. The background wall had layers of clouds, which corresponded with the shape of the bed head. It was childish and lovely.



@合壹空间设计:四季往复,一方小院,记录着花草树木的生动姿态,有家人在侧的每一刻都有趣而幸福。
The four seasons went back and forth. A small yard was recording the lively posture of flowers and trees. Every moment with family around was interesting and happy.

@合壹空间设计:原始结构分析:
1、原始户型空间虽大,但各空间之间比较松散,个别相对较局促;
2、入户便能看见整个客厅,私密性不够高,且没有足够的鞋帽区域,不足以满足屋主的鞋帽需求;
3、客厅外阳台空间不小,其主要功能能被室外花园所替代,因此实用性不高;
4、厨房区域相对较小,不足以一家四口的烹饪需求;
5、卧室有可拆卸的飘窗,使空间使用略有局限。
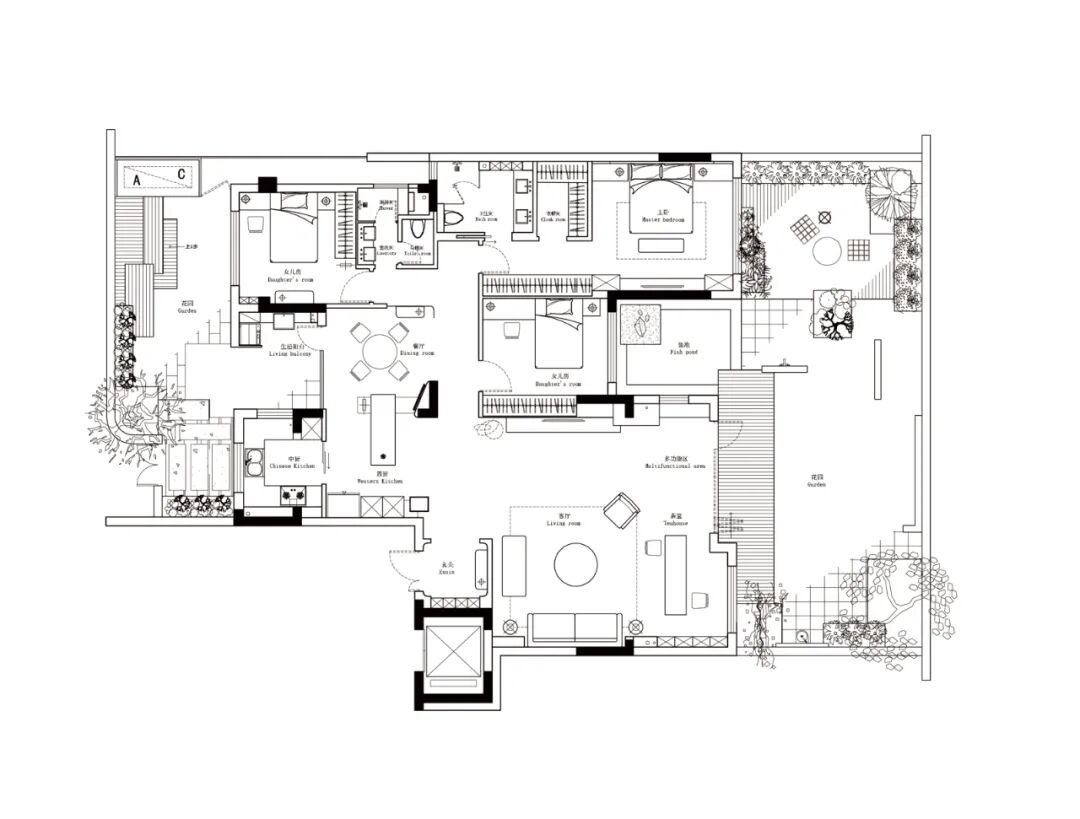
-平面布置图-

@合壹空间设计:空间改造:
1、在原始入户处,增加鞋帽的储物空间的同时,也能遮挡一部分视线,增加整个空间的私密性;
2、连通客厅外阳台,将客厅空间重新布局,兼具多功能区域与开放式茶室,让整个客厅更通透大气;
3、将厨房与生活阳台连通,且向餐厅延伸,加入西厨岛台,增加了整个厨房的使用空间;
4、拆除靠近厨房处的小卧室墙体,与西厨岛台连通,改造为餐厅区域,使餐厨区域整体动线更流畅方便;
5、拆除儿童房卧室飘窗,扩宽卧室面积,利用多出来的区域,将客卫扩大,干湿分离,且双台盆设计足够两人同时使用;
6、主卧飘窗拆除后,多余的空间足够满足屋主独立衣帽间与卫浴的需求,提高主卧舒适度。
-合壹空间设计-
HEY SPACE DESIGN
私宅· 商业 · 软装 · 全托
玩味设计美学 | 营造极致空间 | 创造美好生活

长按关注合壹空间设计官网
www.heysj.cn

长按添加店长微信
地址:重庆市江北区北环龙湖源著天街21栋15楼