
玩味设计美学,极致空间改造,创造美好生活

Wonderful process
能拥有月亮一般美好的开端,经历蜕变重生,也能如鱼得水,拥有美满的结尾。有幸得见,在这里写下岁月变迁,时光飞逝,或发生于此的爱与故事。
生活不会一成不变,但家与爱皆会延续,生生不息,延绵不绝。



@合壹空间设计:入户即现满室的清爽明朗,纯白与黑的对比,强烈而和谐,能随意拼凑的茶几,造型多变,给家带来多种变化的可能,灵动有趣。
The refreshing of the users is clear, pure white and black contrast, strong and harmonious, can piece together tea few haphazardly, with changeable modeling, brings the possibility of many kinds of changes to the home, is flexible and interesting.





@合壹空间设计:纯净、明亮、简洁,这样的环境给人带来治愈美好的归家氛围,能安心享受此刻的静谧安稳。
Pure, bright and simple, such an environment brought people a good atmosphere to heal and return home, and they could enjoy the tranquility and peace at the moment.




@合壹空间设计:书房大量透明玻璃的使用,让整个空间都灵动透亮了起来,没有压抑的氛围感,从书房望去,整个客厅犹如一幅安静的画,静谧优雅。
The large number of transparent glass in the study made the whole space bright and bright, without the sense of oppression. From the study, the whole living room was like a quiet painting, quiet and elegant.




@合壹空间设计:玻璃砖拼凑出一整面透亮的墙,不对称设计的开放式书架,可摆放日常所需书籍,让空间更整齐有序。
The glass bricks made up a whole bright wall. The open bookshelf was designed in an unfair way, which could place the books needed in daily life, making the space more orderly.




@合壹空间设计:餐厅延续整体格调,简约优雅,橘色系的加入给餐厅注入灵动活泼的色彩,不再单调。弧形置物架,留下待填的想象,补满生活的仪式感。
The dinner room continued its overall style, simple and elegant. The orange color added to the restaurant's lively color, no longer monotonous. The arc-shaped shelf left the imagination to be filled and filled with the sense of ceremony of life.



@合壹空间设计:开放的西厨空间,岛台与餐桌相接,留下家人间互动交流的连接,在这里准备早餐、或是享受下午茶,方便自在。
In the open western kitchen space, the island platform and the table were connected, leaving the interaction between the family members. They could prepare breakfast or enjoy afternoon tea here, which was convenient and comfortable.

@合壹空间设计:厨房整体配色简单,预留足够的空间收纳,部分家电内嵌,干净整洁,方便使用。
The color of the kitchen was simple, and enough space was reserved. Some home appliances were embedded, clean, tidy and convenient to use.


@合壹空间设计:主卧区别于客餐厅,增添了一份温柔与浪漫,软装搭配上静谧优雅,套房设计私密性加强,也更舒适方便。
The master bedroom was different from the guest dining room, adding tenderness and romance. The soft clothes matched with tranquility and elegance, and the suite design was more private and comfortable.



@合壹空间设计:靠近窗口的梳妆台,是被日光偏爱的角落,裁剪的日光在此留下斑驳光影,美好而温暖。
The dresser near the window was a corner favored by the sunlight. The tailored sunlight left mottled shadows, beautiful and warm.


@合壹空间设计:静谧、舒适,次卧色调温暖,深色绒面的床头柔软,入眼便给人放松舒心之感。
It was quiet and comfortable. The color of the secondary bedroom was warm, and the head of the bed with dark flannel was soft, which made people feel relaxed and comfortable at first sight.
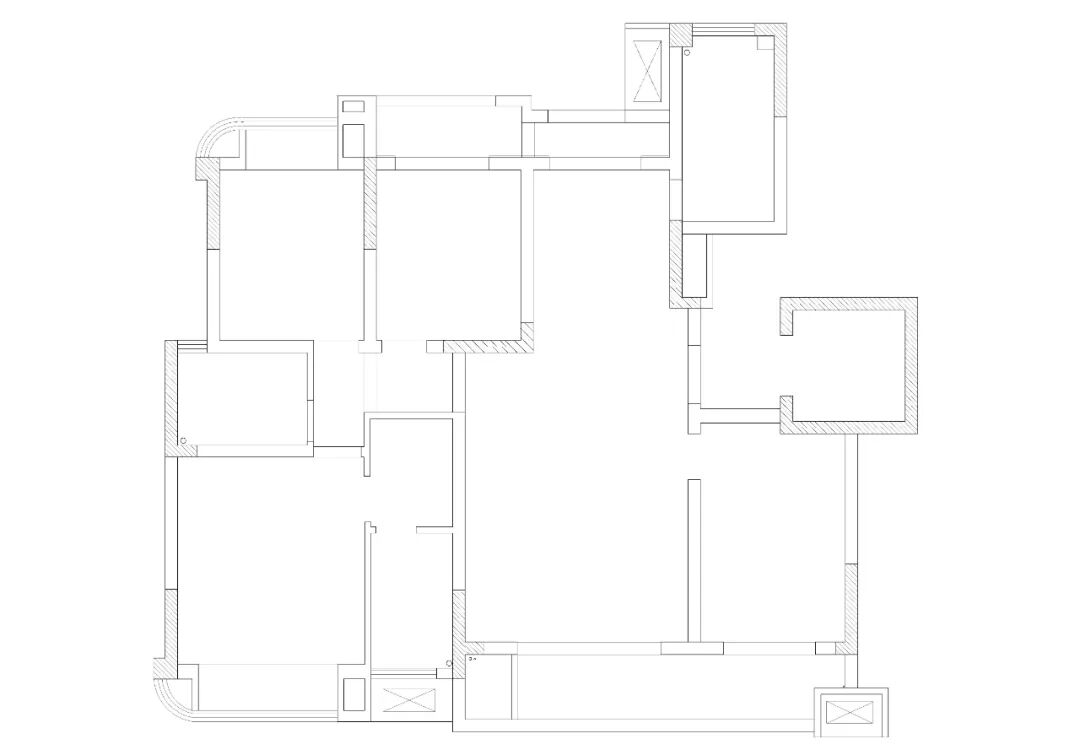
-原始结构图-

@合壹空间设计:原始结构分析:
1、入户处没有足够的鞋帽区域;
2、原始生活阳台较狭长,使用十分局限;
3、卧室的飘窗占据了部分空间,且实用性不高。

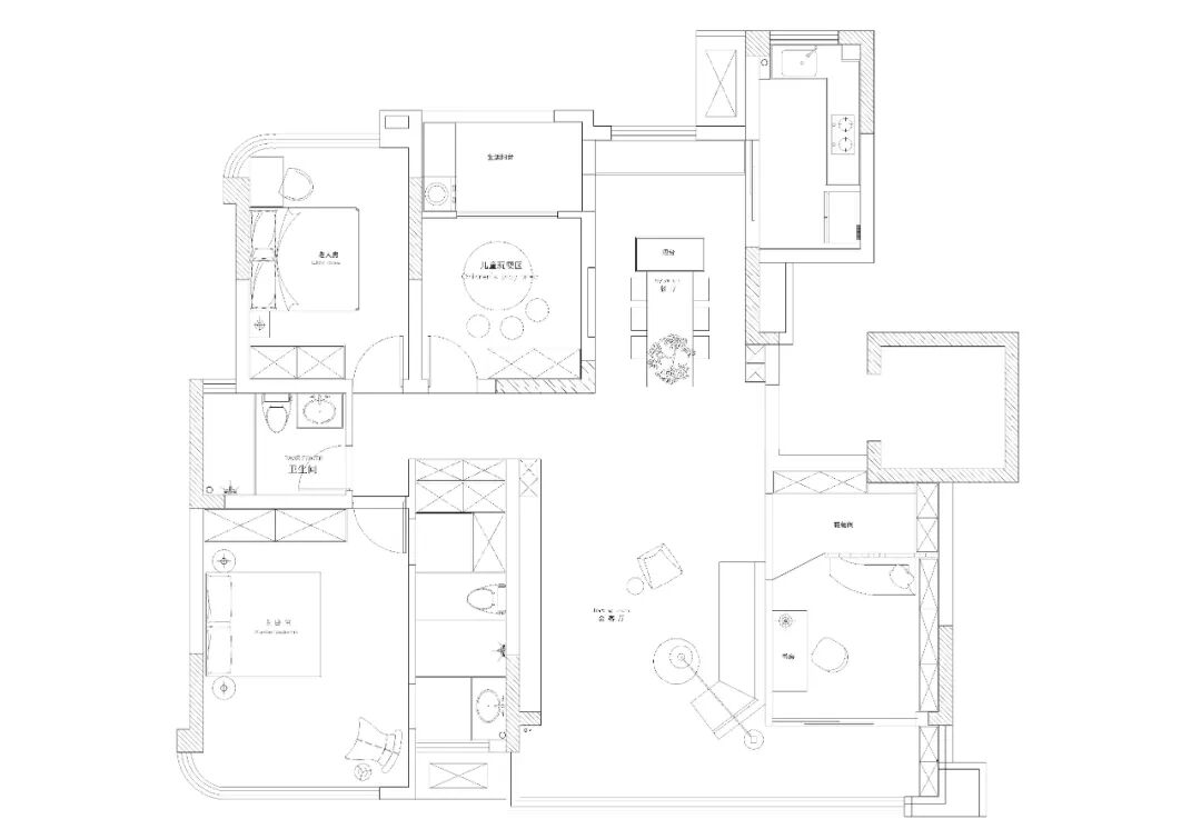
@合壹空间设计:空间改造:
1、在原始入户处设置换鞋区域;
2、利用靠近入户处的卧室空间改造出一个独立的鞋帽区域,以及半开放式的书房,三面玻璃墙的设计,让整个空间更透亮;
3、连通客厅阳台,拆除多余墙体,整体开阔流畅,一整面的落地窗通透明亮;
4、将原始生活阳台改造为西厨操作台,餐厅加岛台设计,便捷大气;
5、利用部分儿童房空间,扩宽生活阳台,拆除两卧室可拆卸的飘窗,增加空间的使用舒适度;
6、主卧套房设计,兼具衣帽间与独立卫浴,功能齐全。
-合壹空间设计-
HEY SPACE DESIGN
私宅· 商业 · 软装 · 全托
玩味设计美学 | 营造极致空间 | 创造美好生活

长按关注合壹空间设计官网
www.heysj.cn

长按添加店长微信
地址:重庆市江北区北环龙湖源著天街21栋15楼