关注 合壹空间设计 请点上方 ▲蓝字

玩味设计美学,极致空间改造,创造美好生活

哈哈派
Dec.21, 2023
Copyright © HEY Space Design
Project area 项目面积:100m²
Decoration cost 装修费用:150 Thousand
Design team 设计团队:HEY Space Design
契合环境与客户定位的设计,更容易带来顾客的消费欲望,正如《哈哈派》辅食店的呈现,旨在打造一个可爱而充满童趣的环境,用活泼鲜明而生动的色彩去装点属于它的童话世界。





@合壹空间设计:外摆区营造出放松自然的氛围感,餐桌椅都是儿童版,透过玻璃也能看见室内之景,与室外相映成趣,十分有趣。
The outdoor display area creates a relaxed and natural atmosphere, and the dining tables and chairs are all children's versions. Through the glass, you can also see the indoor scenery, which complements the outdoor environment and is cute and interesting.




@合壹空间设计:弧形设计的卡座,更显流畅柔和,整个空间满是童趣的元素,一旁设计的洗手区,也方便儿童玩耍后直接洗手用餐,更加干净卫生。
The curved design of the card holder makes it more smooth and soft, and the entire space is full of childlike elements. The hand washing area designed next to it is also convenient for children to wash their hands and eat directly after playing, making it cleaner and more hygienic.


@合壹空间设计:室内的色调,以奶白色为主体,搭配温柔的木地板,整体温柔,用少量鲜艳的亮色点缀,让整个空间更显生动活泼。
The indoor color scheme is mainly milky white, paired with gentle wooden flooring, creating a gentle overall atmosphere. A small amount of bright colors are used to embellish the space, making it more lively and lively.



@合壹空间设计:后厨制作区,采用透明玻璃的设计,透过窗户就能看见整个辅食的制作过程,有趣也更卫生放心。
The kitchen production area adopts a transparent glass design, allowing you to see the entire process of making complementary foods through the window, which is fun and reassuring. The fully transparent process of making complementary foods is both fun and hygienic.



@合壹空间设计:室内也有可供用餐的安静区域,马卡龙的配色,足够亮眼也活泼生动。
There is also a quiet area for dining indoors, and the macaron color scheme is eye-catching and lively.



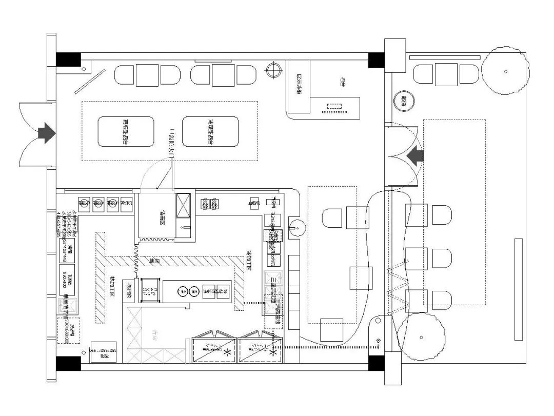
-平面布置图-

@合壹空间设计:这是一个时尚又可爱的辅食店,主要客群是儿童,因此整体设计风格偏向童真可爱。设计师根据业主的实际需求,将各功能合理分区,让空间使用更高效。
根据原始户型,左右两侧都有门口的情况,将选购售卖区,设计为L型,两侧都能让客户进入选购,方便也能更高效地吸引往来的顾客。右侧临街,还设计有方便打卡拍照的外摆区域,与往来行人也更容易产生互动感。
后厨制作区,对于空间的利用把控,也是十分极致的,在满足各种烘焙需求的同时,动线也做到了简单直接,各制作区互相连接配合,井然有序。靠近售卖区一侧,使用大面积的透明玻璃窗,也能让方便顾客看见后厨操作,有趣治愈,也更安全卫生。

长按关注合壹空间设计官网




















©2018-2020 重庆合壹装饰设计工程有限责任公司,版权所有。 未经本公司书面许可,不得修改和使用本站任何内容,包括网站界面。渝ICP备20001688号-1 渝公网安备50010502001998号