
玩味设计美学,极致空间改造,创造美好生活

Minimalist Revolution
February .13, 2025
Copyright © HEY Space Design
Project area 项目面积:127m²
Decoration cost 装修费用:480 Thousand
Design team 设计团队:HEY Space Design
在追求高效与品质的当下,极简风格装修正成为众多人心中的白月光。它以“少即是多”的理念,摒弃繁杂,为家注入纯粹与宁静。




@合壹空间设计:客厅以奶油暖色为主,墙面简洁,地面铺同色瓷砖,整体开阔通透。米白色沙发圆润柔软,搭配毛毯和黑白格纹抱枕,舒适又有格调。黑色不规则茶几上,摆件与杂志尽显生活气息。电视用可移动支架,整面按压式电视柜集收纳和隐形门于一体,视觉极简干净。窗户配百叶窗和纱帘,阳光入室,氛围温暖。
The living room is mainly in warm cream colors, with simple walls and floor tiles of the same color, creating an overall open and transparent atmosphere. The beige sofa is round and soft, paired with a blanket and black and white checkered pillows, comfortable and stylish. On the black irregular coffee table, ornaments and magazines exude a sense of life. The TV is equipped with a movable bracket, and the whole face press type TV cabinet integrates storage and invisible doors, creating a minimalist and clean visual experience. The windows are equipped with blinds and curtains, allowing sunlight to enter and creating a warm atmosphere.






@合壹空间设计:餐厅,是家人朋友共享美食、交流情感的温馨空间,极简风格让这份温馨更显纯粹。开放式的布局是其常见特点,与相邻空间自然衔接,使视野开阔通透。餐桌的选择注重简约与质感,餐桌,纹理自然,造型简洁大方,成为餐厅的视觉焦点。搭配的餐椅同样线条流畅,简约中透着舒适。餐桌上方的吊灯造型独特,灯光柔和,为用餐时刻增添了浪漫氛围。餐厅背景墙挂着一幅简约的艺术画,既丰富了空间层次,又保持了整体的简洁感。在这里,人们可以抛开外界的纷扰,专注于美食与彼此的陪伴,享受欢聚的美好时光。
A restaurant is a warm space for family and friends to share food and exchange emotions, and its minimalist style makes this warmth even more pure. An open layout is a common feature, naturally connecting with adjacent spaces to create a broad and transparent view. The selection of dining tables emphasizes simplicity and texture, with natural textures and simple and elegant shapes, becoming the visual focus of the restaurant. The matching dining chairs also have smooth lines, simple yet comfortable. The pendant light above the dining table has a unique design and soft lighting, adding a romantic atmosphere to the dining experience. There is a simple art painting hanging on the background wall of the restaurant, which not only enriches the spatial hierarchy but also maintains the overall sense of simplicity. Here, people can set aside the distractions of the outside world, focus on food and each other's company, and enjoy the wonderful time of gathering.




@合壹空间设计:卧室,作为每日养精蓄锐的私密空间,极简风格赋予它宁静与温馨的独特气质。步入其中,定制的U型衣柜巧妙的分隔开衣帽间和睡眠区。U型让男女主人更好的分区收纳,睡眠区仅用柔和的色彩渲染出温暖氛围。墙面搭配利落的线条,营造出平和舒缓之感。床尾置放女主人的梳妆台和衣帽架。兼顾空间的利用和实用性。床头的吊灯造型别致,在提供柔和照明的同时,增添了空间的精致感。
The bedroom, as a private space for daily rejuvenation, is endowed with a unique temperament of tranquility and warmth by its minimalist style. Stepping into it, the customized U-shaped wardrobe cleverly separates the dressing room and sleeping area. The U-shape allows for better zoning and storage for both male and female hosts, while the sleeping area is only rendered with soft colors to create a warm atmosphere. The wall is paired with sharp lines to create a sense of peace and relaxation. Place the hostess's dressing table and coat rack at the end of the bed. Balancing space utilization and practicality. The pendant light at the head of the bed has a unique design, providing soft lighting while adding a sense of refinement to the space.









@合壹空间设计:卫生间在极简风格的打造下,成为了清爽洁净、让人放松身心的空间。墙面和地面通常铺设简洁的米白色瓷砖,给人一种干净、明亮的感觉。洗手台多采用壁挂式设计,下方留出空白区域,不仅增加了空间的通透感,还方便日常清洁。浴室柜设计简约实用,镜柜与储物柜相结合,满足了洗漱用品的收纳需求,让物品都能有序摆放,保持空间的整洁。让人们在忙碌一天后,能在这里舒缓压力,洗去一身疲惫。
Under the minimalist style, the bathroom has become a refreshing and clean space that allows people to relax and unwind. The walls and floors are usually covered with simple off white ceramic tiles, giving a clean and bright feeling. The washbasin often adopts a wall mounted design, leaving a blank area below, which not only increases the transparency of the space, but also facilitates daily cleaning. The bathroom cabinet design is simple and practical, combining mirror cabinets with storage cabinets to meet the storage needs of toiletries, allowing items to be arranged in an orderly manner and maintaining a clean space. Allow people to relieve stress and wash away exhaustion after a busy day here.

@合壹空间设计:极简风格装修,是对生活的一种深刻理解和诠释。它让我们学会舍弃繁杂,回归生活的本质,在简洁的空间中感受纯粹的美好。如果你也向往这样一种宁静、舒适、纯粹的生活方式,不妨尝试将极简风格融入你的家居设计中,开启属于你的极简生活新篇章。
Minimalist style decoration is a profound understanding and interpretation of life. It teaches us to abandon complexity, return to the essence of life, and feel pure beauty in a simple space. If you also aspire to such a peaceful, comfortable, and pure way of life, why not try incorporating minimalist style into your home design and opening a new chapter of your own minimalist lifestyle.

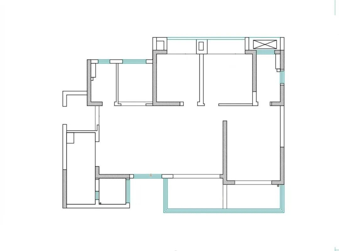
1.整体户型较为规整,各空间分布明确,便于进行功能规划和空间利用;
2.较多的承重结构墙体和不可改造的飘窗,一定程度上限制了空间的通透感和灵活性。
3.各空间尺寸比例适中,能够满足基本的生活需求,但部分空间可能在面积上存在一定局限性,需要合理规划以提升使用效率。

1.功能区重新规划:重新划分了各个功能区,例如将原本可能较为零散的区域整合为明确的卧室、客厅、餐厅、厨房等功能空间,使生活流线更加合理,提升了空间的实用性。
2.部分墙体被拆除,如客厅与相邻空间的墙体,使得客厅空间得到拓展,与餐厅厨房区域形成开放式布局,增强了空间的通透感和互动性,适合现代家庭的社交和生活需求。
3.增加收纳空间:在多个区域设置了收纳空间,如卧室、客厅等,通过定制衣柜、储物柜的方式,充分利用垂直空间,满足家庭日常收纳需求,保持空间整洁。

长按关注合壹空间设计官网
























©2018-2020 重庆合壹装饰设计工程有限责任公司,版权所有。 未经本公司书面许可,不得修改和使用本站任何内容,包括网站界面。渝ICP备20001688号-1 渝公网安备50010502001998号