
玩味设计美学,极致空间改造,创造美好生活

Zen
鸣·禅
Apr.22 , 2022
Copyright © HEY Space Design
Project area 项目面积:120m²
Decoration cost 装修费用:480Thousand
Design team 设计团队:HEY Space Design
小隐隐于野,大隐隐于市,能在这喧嚣闹市中寻一处雅居,暂忘尘嚣,获得一份宁静,也是一种享受。而中式的韵味,恰好契合于这种宁静下的典雅,正如一杯香茗,须静下来慢慢品味,才能感受随时间沉淀下来的珍贵而美好。
于闹市中暂忘尘嚣,寄情这方寸之间,书写自己的诗意人生。
-实景图-



@合壹空间设计:木质稳重与温润的韵味渗透于此,暖色调带来柔和的氛围感给予归家人放松而平静的抚慰,似屏风设计的沙发背景墙,铺就古典的绘画,又增添了中式的精致素雅。
The wood was steady and gentle, and the warm color brought a soft atmosphere to soothe the family. It was like the back wall of the sofa designed by the screen, covered with classical paintings, and added the delicate and elegant for the Chinese style.




@合壹空间设计:归家,远离外界的喧闹,拂去尘世的纷扰,享受一家人围坐于此的和谐温暖,感受流转于此的愉悦舒适。
Back home, staying away from the noise outside, dispelling the disturbance of the mortal world, enjoying the harmonious warmth of the family sitting around, and feeling the pleasure and comfort flowing here.



@合壹空间设计:木质肌理在日光的晕染下,安静而平和,于此品茶看书也是一种雅趣。
The wooden texture was quiet and peaceful in the sunlight. It was also a kind of elegance to enjoy tea and reading here.



@合壹空间设计:中式讲究天圆地方的规整,圆桌寓意着团团圆圆,在写意的水墨背景下,更显中式的深邃内敛与雅致。
The Chinese style was particular about the rules of the round table. The round table meant reunion, which was more profound, reserved and elegant in Chinese style under the background of the ink and wash.

@合壹空间设计:一门之隔,厨房的内与外,是两种不同的景致,现代与中式的碰撞于此展现,却又契合于此的宁静深邃。
There were two different views in the kitchen, one inside and the other outside. The collision of modern and Chinese style was shown here, but it was also compatible with the serenity and profound here.




@合壹空间设计:木百叶裁剪的光影,氤氲温柔,点一盏香,品一壶茶,此时此刻也能感受古人“闲看庭前花开花落,漫随天外云卷云舒”的闲趣。
The well tailored light and shadow of the wooden blinds were full of tenderness. They lit a incense and tasted a pot of tea. At this moment, they could also feel the leisure of the ancient people "enjoying the flowers in front of the court and spreading the clouds outside the sky.".



@合壹空间设计:木之温润,自然质朴,大面积原木铺就的书房,造就中式的端方雅正,一支红枫写满诗意的格调,满室墨香,静心而儒雅,中式的韵味于此展现。
The wood was warm and natural. The large area of the wooden paved study made the Chinese style elegant and upright. A red maple was written in a poetic style, and the whole room was filled with Mexican , calm and elegant. The Chinese style was shown here.



@合壹空间设计:主卧增添了不少的藤编元素,自然朴素,古色古香的背景墙,用竹之清雅铺就宁静舒适的休憩气息。轻纱拂起,就让温柔的微风扫去一天的疲惫。
The master bedroom was decorated with a lot of rattan elements, which made it natural and simple. The quaint back wall was paved with bamboo elegance, making it quiet and comfortable to have a rest. The soft breeze swept away the tiredness of the day.


@合壹空间设计:儿童房简单温馨,暖色更易给人放松的空间包裹感,童趣的元素守护着孩子的纯真与烂漫。
The children's room was simple and warm, and the warm color made people feel more relaxed. The child's element protected the innocence and simplicity of the child.
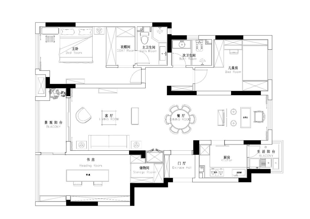
-原始结构图-

@合壹空间设计:原始结构分析:
1、入户处不规则的空间转角,使空间利用会受到一部分限制;
2、客餐厅连通一体,多余的转角影响美观的同时,也使空间的流畅性降低;
3、左下房间的部分转角使空间利用局限,且阳台压缩了部分空间,又与客厅外阳台连通,整体私密性不高;
4、右上角卧室空间相对较小,且主卧有可拆卸的飘窗。
-平面布置图-

@合壹空间设计:空间改造:
1、拆除入户玄关处的墙体,与客餐厅交接处连通,使整个空间更开阔大气;
2、打开整个客餐厅区域,让整体更流畅开阔,利用原有的空调机位,扩大改造,增加茶室功能;
3、将左下的房间外扩,连通阳台,增加使用空间,拆除多余的非承重结构,利用与玄关相接的区域,做隐藏式的储物空间,增加收纳功能;
4、连通右上卧室的阳台,增加使用空间,兼具儿童房的休息与学习功能;
5、拆除主卧飘窗,利用扩大的空间,做开放式的衣帽间,提升主卧舒适度。